Bureau à louer au centre ville






77694 Kehl
1.500 €
2
Nutzungsart
Gewerbe
Vermarktungsart
Miete
Objektart
Büro/Praxen
Objekttyp
Bürofläche
Objektnr
5445-5
Baujahr
1979
Zustand
teil-/vollrenovierungsbedürftig
Anzahl Zimmer
2
Gesamtfläche
150 m²
Nebenkosten
350 €
Kaltmiete
1.500 €
Kaution
3000.00 €
Energieausweis
Energieausweis
Verbrauch
Gültig bis
2025-01-21
Energieverbrauch-kennwert
121.5
Baujahr laut Energieausweis
2000
Gebäudeart
Nicht Wohn
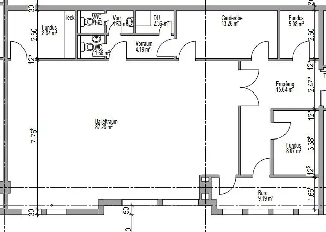
Objektbeschreibung
Bureaux à louer idéalement situés en plein de cœur de Kehl. Le bureau est composé d'une grande pièce centrale de 87 m², ainsi que d'un petit bureau de 9 m². Vous trouverez également 4 espaces de stockage ainsi que des sanitaires H/F. Possibilité de louer des places de parking. Le bureau est situé au 1er étage. Ascenseur. Disponible de suite.
Lage
Idéalement situé dans le zone piétonne de Kehl.
Ausstattung
- chauffage au gaz central 2000 - WC
Anforderung von Exposés, Objektanschriften oder Besichtigungen gilt als Annahme der allgemeinen Geschaftsbedingungen

