Moderne 4-Zimmerwohnung mit Loggia in Kehl-Stadt






















77694 Kehl
499.000 €
119 m²
4
Nutzungsart
Wohnen
Vermarktungsart
Kauf
Objektart
Wohnung
Objekttyp
Etagenwohnung
Objektnr
5641-5
Baujahr
2021
Zustand
Gepflegt
Anzahl Zimmer
4
Anzahl Balkone
1
Anzahl Stellplätze
1
Anzahl Badezimmer
1
Anzahl sep. WC
1
Wohnfläche
119 m²
Anzahl Schlafzimmer
3
Kaufpreis
499.000 €
Außen-Courtage
Käuferprovision beträgt 3,57 % (inkl. MwSt.) des beurkundeten Kaufpreises
Energieausweis
Energieausweis
Bedarf
Gültig bis
2031-11-30
Endenergiebedarf
44.9
Primärenergieträger
Fernwärme
Baujahr laut Energieausweis
2021
Gebäudeart
Wohn
Objektbeschreibung
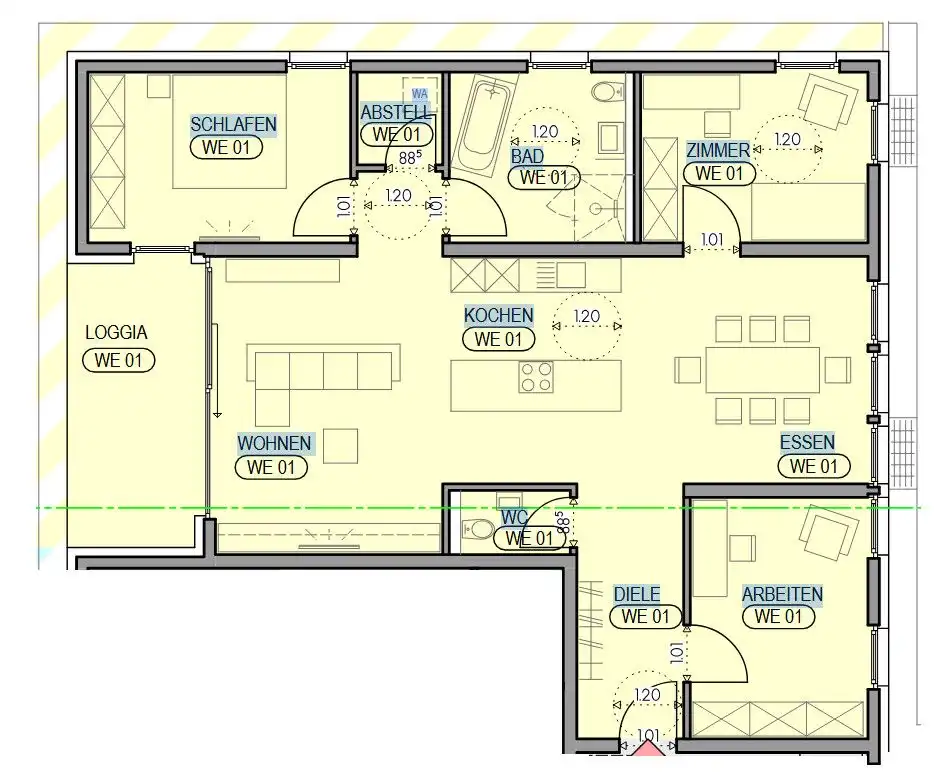
***Terminvereinbarungen sind ohne Anforderung des Exposés leider nicht möglich. Bitte beachten Sie, dass Anfragen aufgrund der gesetzlichen Bestimmungen nicht am Telefon bearbeitet werden können. Bitte senden Sie uns eine Mail.*** Sehr helle, geräumige Stadtwohnung mit geräumigem Balkon Für wen ist diese neuwertige Wohnung eine lohnende Investition? Hier bietet sich auf ca. 119 m² Wohnfläche Platz für alle, die stilvolles Wohnen in Top-Lage schätzen. Ideal für moderne Familien, die gerne zu Fuß oder mit dem Rad unterwegs sind. Diese nahezu neuwertige Wohnung im 1. Obergeschoss eines gepflegten Mehrfamilienhauses überzeugt mit großzügiger Wohnfläche, hochwertiger Ausstattung und durchdachter Raumaufteilung. Ein Aufzug ist vorhanden und erleichtert den Alltag. Aufteilung: - großzügige Diele mit Platz für eine Garderobe - Gäste-WC - lichtdurchflutetes Wohn-Esszimmer mit bodentiefen Fenstern - offene, elegante Küche im amerikanischen Stil – zentral und modern gestaltet, mit Kücheninsel - drei schöne Schlafzimmer - kleiner Abstellraum - modernes Tageslichtbad mit Badewanne, ebenerdiger Dusche und WC - großer, überdachter Balkon mit Blick in den ruhigen Innenhof Untergeschoss - Kellerraum - 1 Tiefgaragen-Stellplatz - Ein zweiter Stellplatz könnte optional für 24.000 € erworben werden. Die Wohnung befindet sich in einem sehr gepflegten, fast neuwertigen Zustand und punktet mit Energieeffizienzklasse A – dank moderner Fernwärme besonders nachhaltig und kostensparend. Ein zeitgemäßes Zuhause, das Design, Komfort und Lage harmonisch vereint: einziehen und wohlfühlen.
Lage
Kehl-Stadt Die Wohnung liegt in zentraler, aber angenehm ruhiger Lage von Kehl. Die Innenstadt, Einkaufsmöglichkeiten und der Bahnhof sind in wenigen Minuten zu Fuß erreichbar. Die Tramlinie D nach Straßburg befindet sich ganz in der Nähe – ideal für Grenzgänger. Schulen, Kitas und Grünanlagen runden die familienfreundliche Umgebung ab.
Ausstattung
- Parkettboden in allen Wohnräumen - bodentiefe Fenster für viel Licht und modernes Ambiente - moderne Einbauküche im amerikanischen Stil - elektrische Stores, Markise am überdachten Balkon - stilvoll ausgestattetes Bad mit Wanne und Dusche - großer Balkon zum ruhigen Innenhof - Aufzug im Haus - energieeffiziente Versorgung durch Fernwärme (Energieklasse A) - Solaranlage - Kellerraum - 1 TG-Stellplatz - Ein zusätzlicher TG Stellplatz könnte für 24.000 € erworben werden.
Anforderung von Exposés, Objektanschriften oder Besichtigungen gilt als Annahme der allgemeinen Geschaftsbedingungen

