Gewerberäumlichkeit mit 2 Büros in Ettenheim









77955 Ettenheim
780 €
3
Nutzungsart
Gewerbe
Vermarktungsart
Miete
Objektart
Büro/Praxen
Objekttyp
Bürohaus
Objektnr
5779-8
Anzahl Zimmer
3
Gesamtfläche
68.52 m²
Nebenkosten
100 €
Kaltmiete
780 €
Warmmiete
880 €
Kaution
1560 €
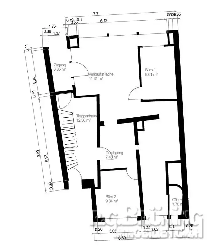
Objektbeschreibung
***Terminvereinbarungen sind ohne Anforderung des Exposés leider nicht möglich. Bitte beachten Sie, dass Anfragen aufgrund der gesetzlichen Bestimmungen nicht am Telefon bearbeitet werden können. Bitte senden Sie uns eine Mail.*** Zur Vermietung steht eine renovierte Gewerbeeinheit mit Büroräumlichkeiten in zentraler Lage der schönen Ettenheimer Altstadt. Erdgeschoss - Geschäftsräumlichkeiten mit Schaufenster Aufteilung: - Empfang - 2 Büros - 1 Küche
Lage
Ettenheim-Altstadt - zentrale Lage. Die zentrale Innenstadtlage sorgt für eine hervorragende Infrastruktur, kurze Wege und urbanes Leben direkt vor der Tür.
Ausstattung
- unmöbliert, jedoch renoviert - Teppichboden und Holzfenster - Elektroheizung Nachtspeicher - 1 Kellerabteil (K 3 - gesondert ausgewiesen für 40 Euro)
Sonstige Angaben
Nach Vereinbarung
Anforderung von Exposés, Objektanschriften oder Besichtigungen gilt als Annahme der allgemeinen Geschaftsbedingungen

